Start Your Home Search Here!
My site offers the widest range of search opportunities when you begin to look for a new home. Start with my “Enhanced Listings” to get a taste of some of the top properties I have in my personal database. Then search our local Multiple Listings Service (MLS.ca) to view homes for sale by all real estate agents. Or, broaden your scope even more, and explore possibilities throughout Canada – click on the national MLS search to find homes for sale throughout the country!
If you don’t have time to search for a new home in, let my system do the work for you. Simply register to have your home search updated automatically.
Let Me Be Your Guide!
Whatever search option you explore, let me help you navigate. If you find a home that seems like a fit for you, simply enter the MLS# into the box provided, fill out your contact info and let me do the rest. I’ll be in touch shortly with more information and schedule a tour of the home if you wish. I’ll help you every step of the way!

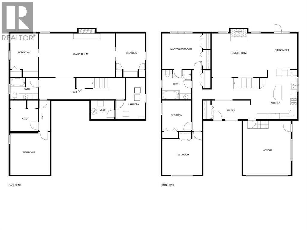
25 Westheights DriveDidsbury, AB T0M0W0




Welcome to your dream family home, perfectly situated on an oversized lot with abundant parking—including a large concrete RV pad. The private backyard is a true retreat, featuring a charming playhouse tucked into the corner and backing directly onto a spacious park with a playground—perfect for families. Offering over 3,200 sq. ft. of developed living space, this warm and inviting 6-bedroom home blends comfort, functionality, and timeless charm. Your experience begins in the beautiful front courtyard and continues into a spacious, welcoming entryway. The sunken living room is filled with character, showcasing a classic wood-burning fireplace with log lighter and a solar tube that fills the space with natural light. Hardwood and Artica tile flooring, along with plush carpeting (updated just three years ago), add both style and comfort throughout. The heart of the home is the well-appointed kitchen, complete with solid pine cabinetry, a large island, gas stove, and a second oven—ideal for cooking and entertaining. The main level also features three generously sized bedrooms and a full family bathroom with a jetted tub and separate shower. Downstairs, the expansive family room offers a cozy second fireplace (gas), creating the perfect gathering space. Two of the three lower-level bedrooms include double pocket doors and built-in desks—great for students or home offices. You’ll also appreciate the oversized laundry room with space for an additional fridge and freezer, along with a newer, high-efficiency boiler in the utility room. Step outside through the dining room garden doors to a large rear deck with pergola, overlooking the backyard and the park beyond—an ideal setting for relaxing or entertaining. Located in the welcoming community of Didsbury, this home offers small-town charm with easy access to schools, parks, and local amenities. Plus, the Didsbury Golf Club is just across the street, adding to the appeal of this fantastic location. Don’t miss your opportuni ty to call this exceptional property home—schedule your showing today and start imagining the lifestyle that awaits! (id:31684)
| a week ago | Listing updated with changes from the MLS® | |
| 3 weeks ago | Listing first seen on site |
The trademarks MLS®, Multiple Listing Service® and the associated logos are owned by The Canadian Real Estate Association (CREA) and identify the quality of services provided by real estate professionals who are members of CREA. Used under license.
The trademarks REALTOR®, REALTORS®, and the REALTOR® logo are controlled by The Canadian Real Estate Association (CREA) and identify real estate professionals who are members of CREA. These trademarks are owned or controlled by The Canadian Real Estate Association (CREA) and identify real estate professionals who are members of CREA (REALTOR®) and/or the quality of services they provide (MLS®).
This REALTOR.ca listing content is owned and licensed by REALTOR® members of The Canadian Real Estate Association.


