Start Your Home Search Here!
My site offers the widest range of search opportunities when you begin to look for a new home. Start with my “Enhanced Listings” to get a taste of some of the top properties I have in my personal database. Then search our local Multiple Listings Service (MLS.ca) to view homes for sale by all real estate agents. Or, broaden your scope even more, and explore possibilities throughout Canada – click on the national MLS search to find homes for sale throughout the country!
If you don’t have time to search for a new home in, let my system do the work for you. Simply register to have your home search updated automatically.
Let Me Be Your Guide!
Whatever search option you explore, let me help you navigate. If you find a home that seems like a fit for you, simply enter the MLS# into the box provided, fill out your contact info and let me do the rest. I’ll be in touch shortly with more information and schedule a tour of the home if you wish. I’ll help you every step of the way!

2305 Richmond Road SWCalgary, AB T2E5E3




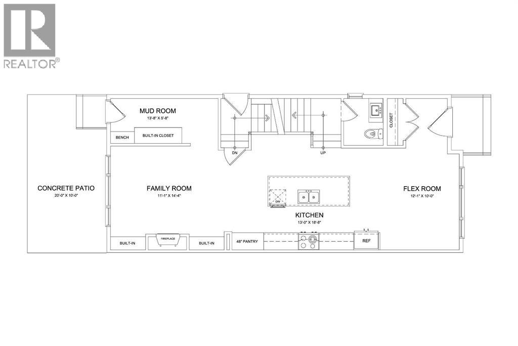
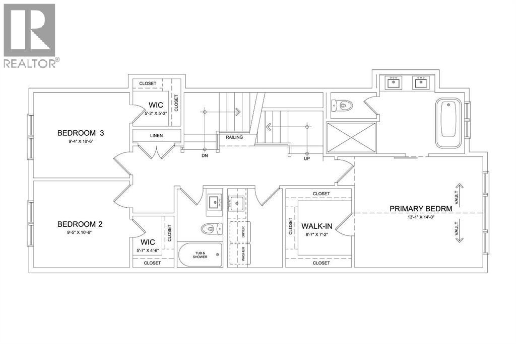
This UNDER CONSTRUCTION 3 STOREY home will be ready in August and offers refined design, elevated living & a location that blends luxury with city convenience. This exceptional semi-detached residence offers over four thoughtfully developed levels, including a fully finished legal suite, and is perfectly positioned BAKING ONTO A PARK with a sun-filled WEST-facing backyard—delivering both tranquility and rare inner-city views.Situated in the highly sought-after community of RICHMOND, this home places you moments from Calgary’s most desirable amenities while offering the serenity of park-side living. Enjoy direct access to green space, walking paths, and playgrounds just beyond your backyard, with effortless connectivity to downtown, top-rated schools, boutique shopping, and vibrant dining along 17TH AVE SW and MARDA LOOP.Step inside and experience a refined, modern interior where clean lines and intentional design create a sense of understated luxury. The welcoming FOYER opens to a bright dining room perfect for family gatherings or entertaining. A discreetly tucked away POWDER ROOM adds convenience without compromising flow.At the heart of the home, the main living area unfolds with seamless elegance. The kitchen is both functional and striking, anchored by an oversized island and complemented by a generous pantry—perfect for everyday living or elevated entertaining. The adjoining family room is warm and inviting, centred around a fireplace with custom built-in cabinetry, while expansive rear windows frame picturesque park views and fill the space with natural light.Step outside to the WEST-FACING BACKYARD, where a private patio is an ideal setting for sunset evenings, summer gatherings, or quiet morning coffee surrounded by greenery. A thoughtfully designed mud room with built-in storage ensures effortless organization.The second level is designed for comfort and retreat. The PRIMARY SUITE offers a serene escape with vaulted ceilings, a spacious walk-in c loset, and a spa-inspired ensuite featuring a freestanding tub and separate shower. Two additional bedrooms, each with walk-in closets, a full bathroom, and convenient upper laundry complete this level.Elevating the home even further, the THIRD LEVEL LOFT provides a truly standout space. This open-concept retreat features a built-in bar, a stylish 3-piece bathroom, and access to a large, sunny west-facing balcony overlooking the park. Whether used as an entertainment lounge, executive workspace, or private getaway, this level captures stunning elevated park views and unforgettable sunsets.Downstairs, the fully developed LEGAL BASEMENT SUITE offers exceptional flexibility and income potential. Complete with its own kitchen, spacious rec room, two bedrooms, bathroom & laundry, it’s perfectly suited for extended family, guests, or rental opportunities.Living in Richmond means enjoying a quiet, established inner-city neighbourhood with unparalleled access to Calgary’s best outdoor and urban amenities. (id:31684)
| 6 hours ago | Listing updated with changes from the MLS® | |
| 3 days ago | Listing first seen on site |
The trademarks MLS®, Multiple Listing Service® and the associated logos are owned by The Canadian Real Estate Association (CREA) and identify the quality of services provided by real estate professionals who are members of CREA. Used under license.
The trademarks REALTOR®, REALTORS®, and the REALTOR® logo are controlled by The Canadian Real Estate Association (CREA) and identify real estate professionals who are members of CREA. These trademarks are owned or controlled by The Canadian Real Estate Association (CREA) and identify real estate professionals who are members of CREA (REALTOR®) and/or the quality of services they provide (MLS®).
This REALTOR.ca listing content is owned and licensed by REALTOR® members of The Canadian Real Estate Association.


