Start Your Home Search Here!
My site offers the widest range of search opportunities when you begin to look for a new home. Start with my “Enhanced Listings” to get a taste of some of the top properties I have in my personal database. Then search our local Multiple Listings Service (MLS.ca) to view homes for sale by all real estate agents. Or, broaden your scope even more, and explore possibilities throughout Canada – click on the national MLS search to find homes for sale throughout the country!
If you don’t have time to search for a new home in, let my system do the work for you. Simply register to have your home search updated automatically.
Let Me Be Your Guide!
Whatever search option you explore, let me help you navigate. If you find a home that seems like a fit for you, simply enter the MLS# into the box provided, fill out your contact info and let me do the rest. I’ll be in touch shortly with more information and schedule a tour of the home if you wish. I’ll help you every step of the way!

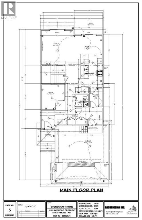
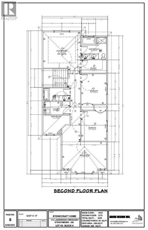
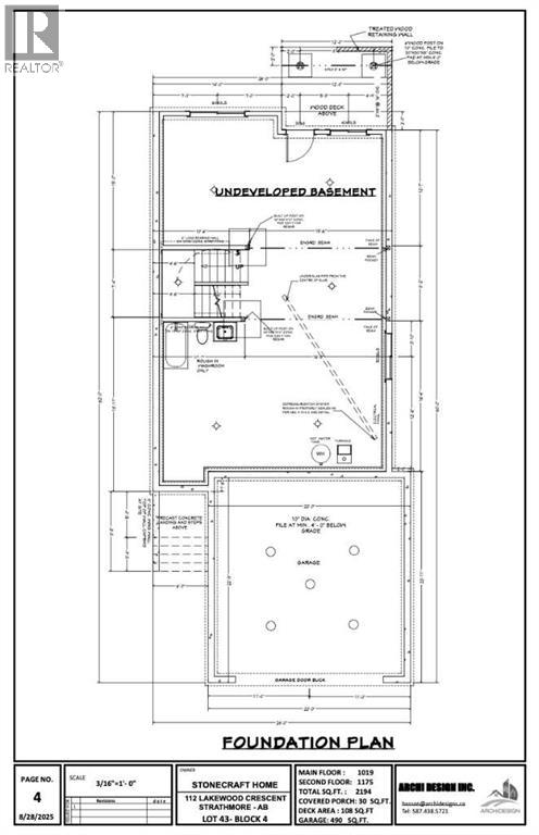
112 Lakewood CrescentStrathmore, AB T1P2J9




This brand-new home by Stonecraft Homes scheduled to be ready for possession in June 2026 and thoughtfully designed with today’s modern buyer in mind. Backing onto Brave park, a walking path, and green space in a family friendly neighbourhood.Offering 2,194 sq ft of developed living space plus an unspoiled walkout basement, including a side entrance and rough-in for a future bathroom, providing exceptional value, and excellent potential for additional development. The bright, open-concept main floor features a contemporary kitchen with on-trend finishes and new appliances, a walkthrough pantry, mudroom, powder room, and a versatile den ideal for a home office. Upstairs you’ll find a well-designed laundry room, spacious bonus room, three bedrooms, and two full bathrooms, all finished with clean, modern touches that balance style and functionality. The builder is offering upgrades including full-height kitchen cabinetry to the ceiling (textured or high-gloss finish), quartz countertops, MDF built-in closets and pantry shelving, spindle hand railing, sleek black door and closet hardware, waterproof vinyl flooring, and a stylish electric fireplace. Buyers may have the opportunity to personalize interior finishes and colour selections, subject to construction stage and closing/builder timelines. The new owners will also receive a $1,000 credit to use toward moving costs, blinds, or a washer and dryer. This incentive package is available until March 31, 2026. Don't forget; First-time buyers can take advantage of the GST rebate. Appliance package and GST are included.Located in Strathmore’s desirable Lakewood community, residents enjoy access to walking trails, parks, and green space, along with convenient access to schools (with free busing and no catchment zones), shopping, and everyday amenities. Enjoy the ease of a quick commute to Calgary while living in a vibrant, growing neighbourhood designed for connected, active living.Contemporary design, smart layout, a nd outstanding value — don’t miss this opportunity. (id:31684)
| 8 hours ago | Listing updated with changes from the MLS® | |
| 3 months ago | Listing first seen on site |
The trademarks MLS®, Multiple Listing Service® and the associated logos are owned by The Canadian Real Estate Association (CREA) and identify the quality of services provided by real estate professionals who are members of CREA. Used under license.
The trademarks REALTOR®, REALTORS®, and the REALTOR® logo are controlled by The Canadian Real Estate Association (CREA) and identify real estate professionals who are members of CREA. These trademarks are owned or controlled by The Canadian Real Estate Association (CREA) and identify real estate professionals who are members of CREA (REALTOR®) and/or the quality of services they provide (MLS®).
This REALTOR.ca listing content is owned and licensed by REALTOR® members of The Canadian Real Estate Association.


