Start Your Home Search Here!
My site offers the widest range of search opportunities when you begin to look for a new home. Start with my “Enhanced Listings” to get a taste of some of the top properties I have in my personal database. Then search our local Multiple Listings Service (MLS.ca) to view homes for sale by all real estate agents. Or, broaden your scope even more, and explore possibilities throughout Canada – click on the national MLS search to find homes for sale throughout the country!
If you don’t have time to search for a new home in, let my system do the work for you. Simply register to have your home search updated automatically.
Let Me Be Your Guide!
Whatever search option you explore, let me help you navigate. If you find a home that seems like a fit for you, simply enter the MLS# into the box provided, fill out your contact info and let me do the rest. I’ll be in touch shortly with more information and schedule a tour of the home if you wish. I’ll help you every step of the way!

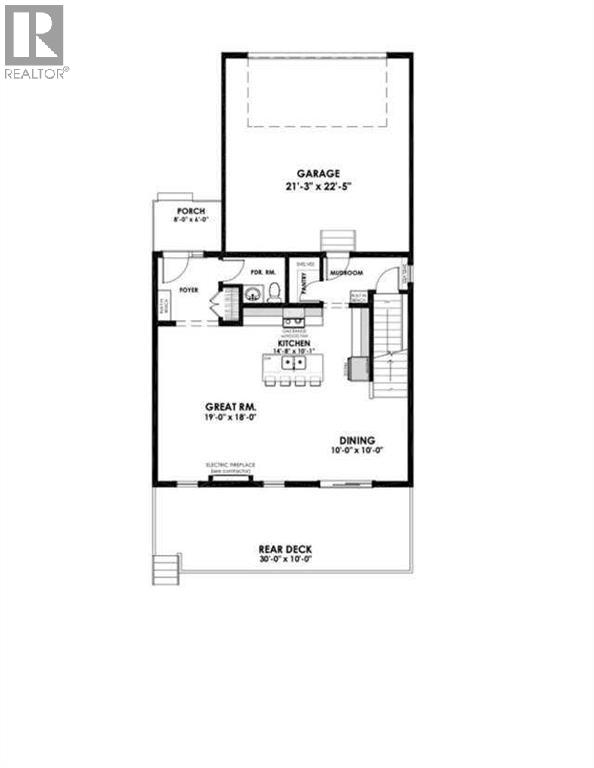
316 John Avenue SWDiamond Valley, AB T0L2A0




For more information, please click the "More Information" button. Welcome to Lot 42 at 316 John Avenue SW in the thoughtfully planned community of Diamond Ridge in Diamond Valley. The Kincaid 4 custom home offers refined two-storey living with a smart, family-focused layout, abundant natural light, and carefully selected finishes that balance function and style. This distinctive four-bedroom, 2.5-bathroom home offers 1,798.4 sq. ft. of developed living space, including 750.6 sq. ft. on the main level and 1,047.8 sq. ft. on the upper level, plus an undeveloped basement providing excellent opportunity for future customization. Large windows throughout create a bright and welcoming atmosphere, while the layout feels open yet thoughtfully defined—ideal for both everyday living and entertaining. The main floor features 9’ ceilings and a seamless connection between the Great Room, dining area, and kitchen. The kitchen is anchored by a large island with breakfast bar and complemented by stone countertops, soft-close cabinetry, a premium LG appliance package, and a convenient pantry for added storage. The foyer offers a welcoming entry point, while a well-designed mudroom with direct access to the attached garage enhances daily convenience. A main floor half bathroom completes this level. Upstairs, 8’ ceilings with engineered wood truss construction create a clean and functional upper level. The second floor features four bedrooms, including a spacious primary retreat with a four-piece ensuite and walk-in closet. A three-piece bathroom serves the additional bedrooms, offering comfortable accommodation for family or guests. The home also benefits from rear lane access, adding flexibility and long-term practicality. Situated in Diamond Ridge, residents enjoy close proximity to local shops, cafés, schools, parks, pathway systems, and access to the Sheep River and regional trail networks. Convenient connections to Okotoks and south Calgary provide an ideal balance of small-tow n charm and accessibility. Estimated completion is scheduled for Summer 2026. Photos are for illustrative purposes only. (id:31684)
| 4 weeks ago | Listing updated with changes from the MLS® | |
| 4 weeks ago | Listing first seen on site |
The trademarks MLS®, Multiple Listing Service® and the associated logos are owned by The Canadian Real Estate Association (CREA) and identify the quality of services provided by real estate professionals who are members of CREA. Used under license.
The trademarks REALTOR®, REALTORS®, and the REALTOR® logo are controlled by The Canadian Real Estate Association (CREA) and identify real estate professionals who are members of CREA. These trademarks are owned or controlled by The Canadian Real Estate Association (CREA) and identify real estate professionals who are members of CREA (REALTOR®) and/or the quality of services they provide (MLS®).
This REALTOR.ca listing content is owned and licensed by REALTOR® members of The Canadian Real Estate Association.


