Start Your Home Search Here!
My site offers the widest range of search opportunities when you begin to look for a new home. Start with my “Enhanced Listings” to get a taste of some of the top properties I have in my personal database. Then search our local Multiple Listings Service (MLS.ca) to view homes for sale by all real estate agents. Or, broaden your scope even more, and explore possibilities throughout Canada – click on the national MLS search to find homes for sale throughout the country!
If you don’t have time to search for a new home in, let my system do the work for you. Simply register to have your home search updated automatically.
Let Me Be Your Guide!
Whatever search option you explore, let me help you navigate. If you find a home that seems like a fit for you, simply enter the MLS# into the box provided, fill out your contact info and let me do the rest. I’ll be in touch shortly with more information and schedule a tour of the home if you wish. I’ll help you every step of the way!

101, 625 2 Avenue NWCalgary, AB T2N0E2




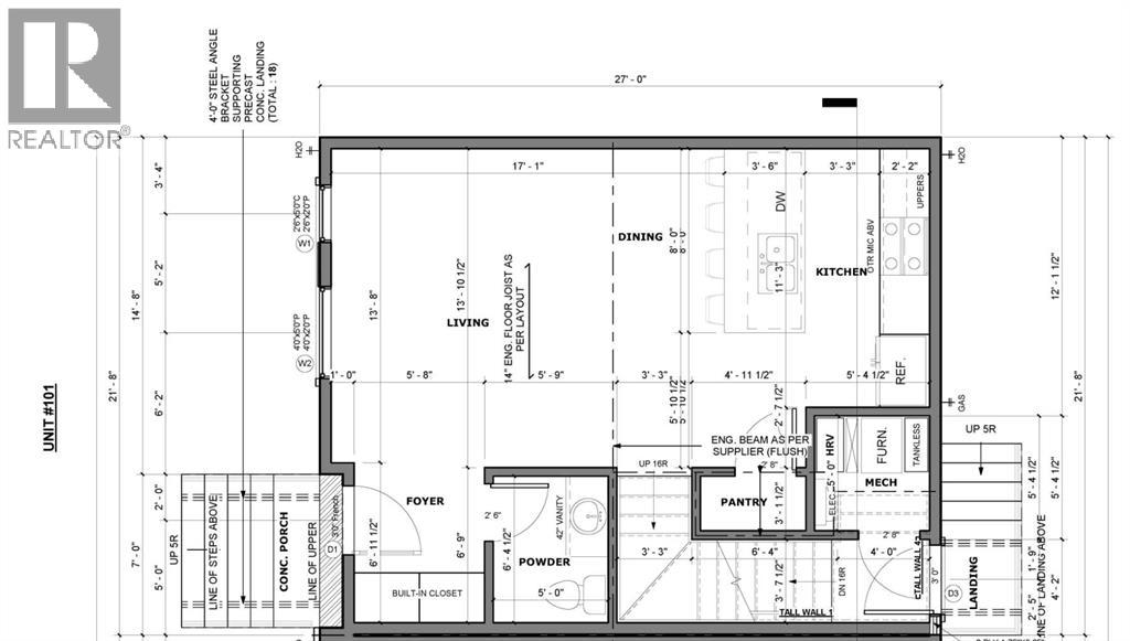
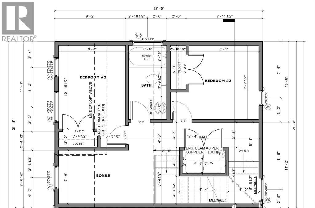
BRAND NEW FRONT FACING END-UNIT TOWNHOME | OUTSTANDING SUNNYSIDE INNER-CITY LOCATION | 3 STOREYS ABOVE GRADE | PRIVATE PRIMARY RETREAT WITH BALCONY | BONUS ROOM + 3 BEDROOMS | OPEN-CONCEPT MAIN FLOOR | LEGAL 1-BEDROOM BASEMENT SUITE | FIRE-RATED & SOUND-SEPARATED CONSTRUCTION | Brand new and currently under construction, this end-unit inner-city townhome delivers a thoughtfully designed layout paired with a fully self-contained legal basement suite, offering exceptional flexibility for homeowners, investors or multi-generational living. Quality construction, modern design and a highly functional floorplan combine to create a private and low-maintenance urban residence in one of Calgary’s most desirable neighbourhoods. The open-concept main floor is designed as a great-room style living space, seamlessly connecting the kitchen, dining and living areas to support everyday living and entertaining with ease. Designed for everyday usability, the kitchen features modern appliances and generous prep and storage space, while the end-unit position enhances privacy and natural light. The second level features 2 well-proportioned bedrooms, a full 4-piece bathroom, convenient upper-level laundry and a dedicated bonus room ideal for a home office, media space or additional living area. A true owner’s oasis, the entire third level is reserved as a private primary retreat, complete with a large walk-in closet, a luxurious ensuite and a private balcony that creates separation from the rest of the home. The fully developed legal basement suite includes a private entrance, dedicated kitchen, living area, bedroom, full bathroom and in-suite laundry, providing excellent rental potential and true separation between living spaces. Built to current code with fire-rated and sound-separated assemblies and efficient mechanical systems, this property offers peace of mind and long-term durability. Ideally located in the heart of Sunnyside, just steps from boutique shops, acclaimed restaurants, independent cafes, the LRT station, the Bow River pathway system and downtown, this home combines beautiful brand-new construction and a vibrant inner-city lifestyle. (id:31684)
| 2 months ago | Listing updated with changes from the MLS® | |
| 2 months ago | Price changed to $959,900 | |
| 4 months ago | Listing first seen on site |
The trademarks MLS®, Multiple Listing Service® and the associated logos are owned by The Canadian Real Estate Association (CREA) and identify the quality of services provided by real estate professionals who are members of CREA. Used under license.
The trademarks REALTOR®, REALTORS®, and the REALTOR® logo are controlled by The Canadian Real Estate Association (CREA) and identify real estate professionals who are members of CREA. These trademarks are owned or controlled by The Canadian Real Estate Association (CREA) and identify real estate professionals who are members of CREA (REALTOR®) and/or the quality of services they provide (MLS®).
This REALTOR.ca listing content is owned and licensed by REALTOR® members of The Canadian Real Estate Association.


